Projekte

Nord-Ostsee-Automobile am Rothenbaum
Auftraggeber

Brammer GmbH & Co. KG

Ort

Rothenbaumchaussee 144
Hamburg

 
Details

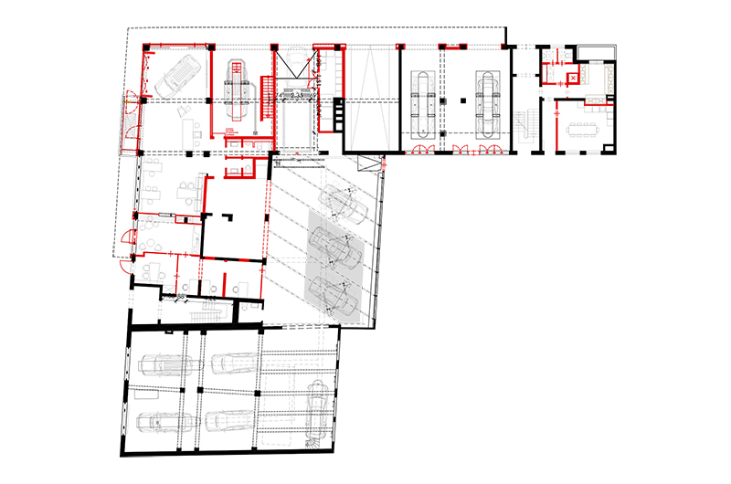
    Umstrukturierung und Erweiterung eines Autohauses

    Eine alteingesessene KFZ-Werkstatt wurde in ein aktuelles Mercedes-Service-Center umgestaltet.

    Leistungsphasen 1-5

  • Nutzfläche nach Umbau : ca. 1.700 m²
 

 

Fassadengestaltung
Erdgeschoss