Projekte

Apart-Hotel in Hamburg Harburg
Bauherr

Haus & Capital

Ort

Lüneburger Straße 5 Hamburg

Details

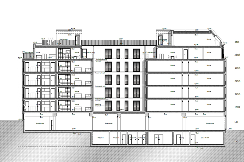
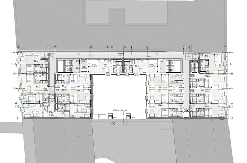
    Neubau eines Apart-Hotels mit Handelsflächen im EG

    Leistungsphasen 1-5

  • Grundstücksgröße: ca. 700 m²
  • BGF (o.i.): ca. 3940m²
  • Anzahl Apartments: 69
  • Verkaufsnutzfläche: ca. 430m²
  •  
  •  
Links

 

Visualisierung
Regelgrundriss
Schnitt