Projekte

Split-Level-Doppelhaus
Bauherr

Vivet Capital GmbH

Ort

Hamburg Stellingen

Details

    Neubau eines zweigeschossigen Doppelhauses, welches ohne Staffelgeschoss geplant werden musste.

  • Leistungsphasen 1-4
  • Grundstücksgröße: ca. 833 m²
  • BGF: ca. 505m²
  • Anzahl Wohnungen: 2
  •  
  •  
Links

 

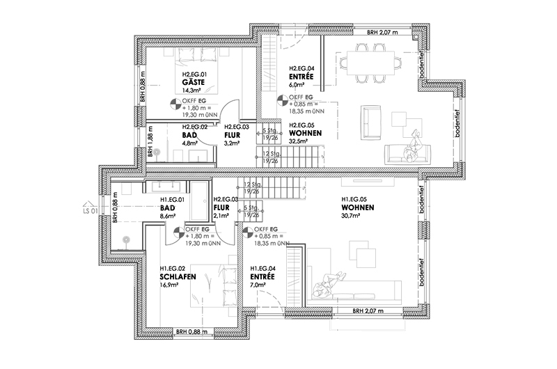
Grundriss EG
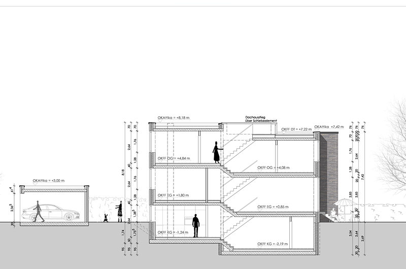
Schnitt
Ansicht Nord
Ansicht Ost
Ansicht Süd
Ansicht West